THANH HÓA MANSION

  • Chi tiết dự án

    Dự án: Thanh Hóa Mansion

    Chủ đầu tư: Mr

    Khách hàng: Mr

    Địa điểm xây dựng: Huyện Quảng Xương, tỉnh Thanh Hóa


    Nội dung thực hiện:

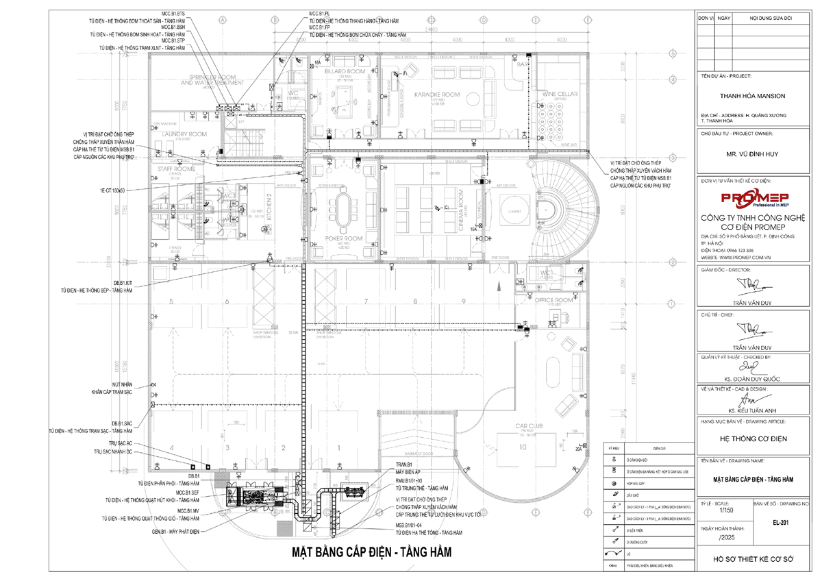
    • Tư vấn thiết kế hệ thống điện, điện nhẹ
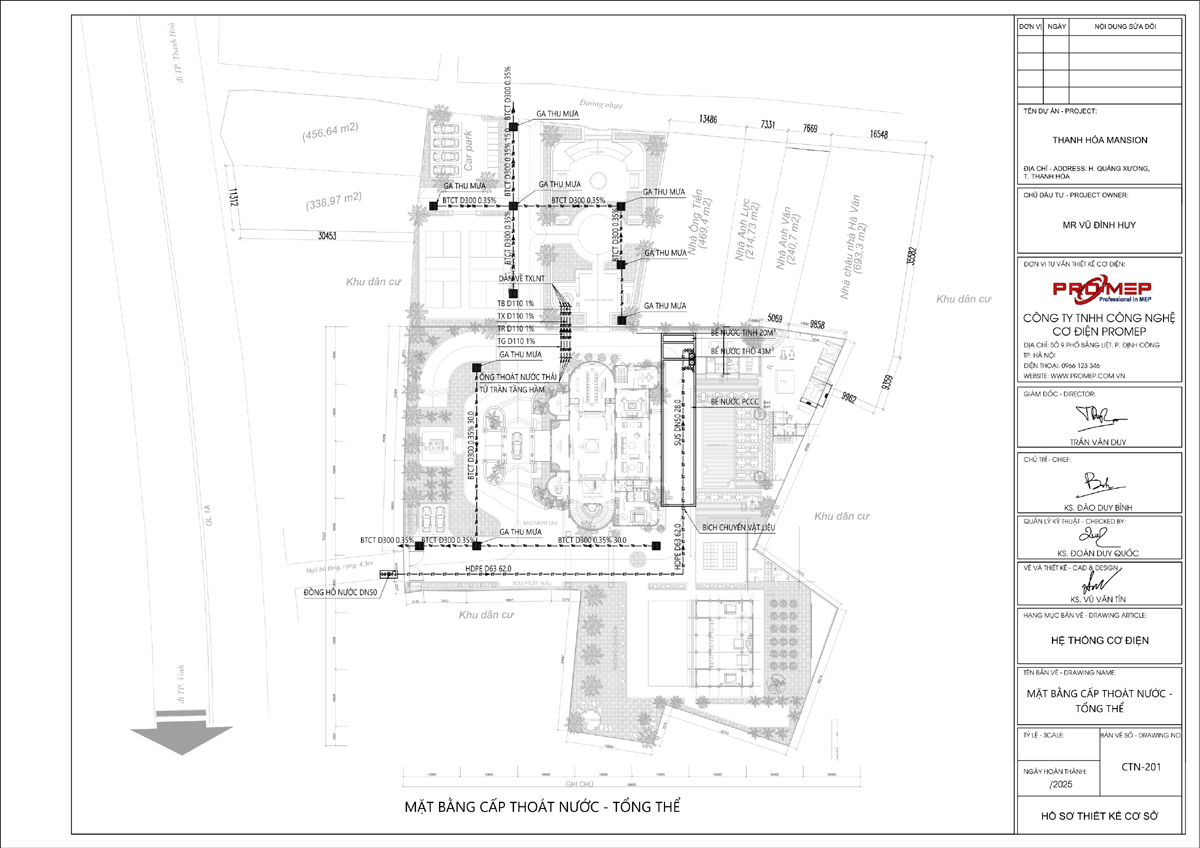
    • Tư vấn thiết kế hệ thống cấp thoát nước
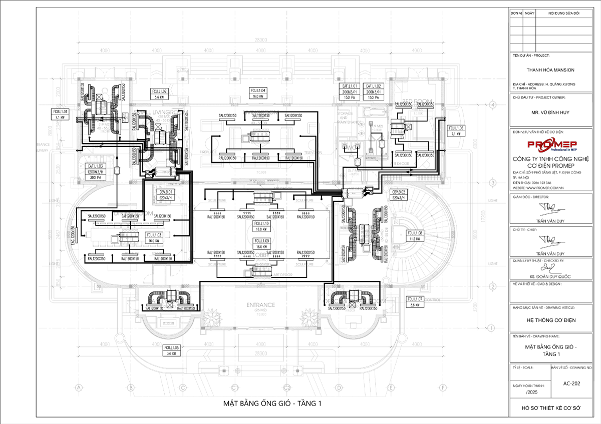
    • Tư vấn thiết kế hệ thống điều hòa thông gió

    Quy mô dự án:

    Tổng diện tích 3.170m2 bao gồm 1 tầng hầm, 4 tầng nổi, 1 tầng tum

    Dự án liên quan